board logo
selinkadah
9 years ago
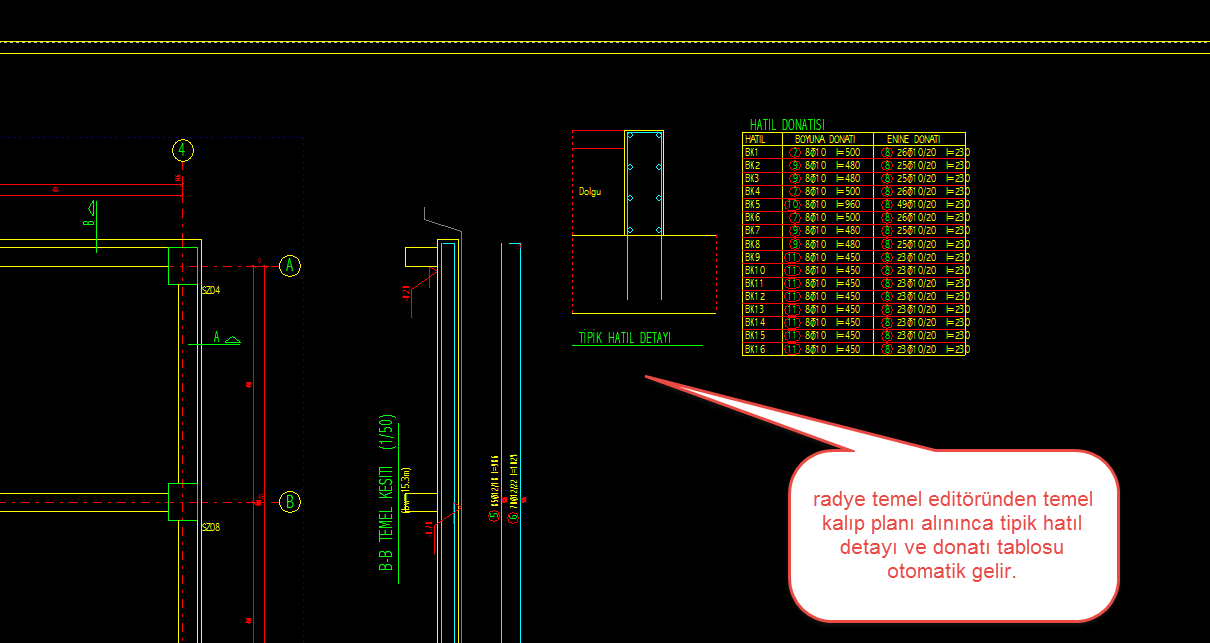
Sta4CAD’de Radye Temel üstüne Yükseltme Perdesi tanımladığımızda; bağ kirişi hatıl donatısı çizimlerini nereden almamız gerekir? (Yani Temel Aplikasyon Çizimi kısmından mı yoksa Radye Temel FEA Analizi kısmından mı?)
guraykose
9 years ago
radyede_hatil.png

Click to View Image880 View(s)

selinkadah
9 years ago
Peki Güray Bey, Radye temelimiz mevcut olduğu durumda bağ kiriş çizimini; Radye Temellerin fea Analizleri kısmından alırken, projemizde mütemadi temel mevcut ise çizimleri temel aplikasyon çizimi kısmından alacağız, doğrumu anlamışım?
guraykose
9 years ago
selinkadah
9 years ago
Anladım Güray Bey Çünkü; radye temellerin fea analizi kısmındaki ve temel aplikasyon çizimi kısmındaki bağ kirişi tablo hesapları birbirinden farklı çıkmaktadır.

Peki bu konu ile ilgili son olarak; Mütemadi Temel üstüne Yükseltme Perdesi tanımlandığında, temel çizimi ve bağ kirişi çizimi Temel Aplikasyon ve Detay Çizimi kısmından yaptırılıyor. Bu durumda Bağ Kirişi çizimine tıkladığımızda aşağıdaki gibi tablo verilmediği durumda ne yapılacak?


Screenshot_2.png

Click to View Image554 View(s)

guraykose
9 years ago
Mutemadi temel üzerindeki hatıl temelin elemanı olarak girildiğinden donatisi temel detaylarinda gerek boy gerekse en kesitte gösteriliyor.
Güray KÖSE