board logo
insmuh.hkilicoglu
2 months ago
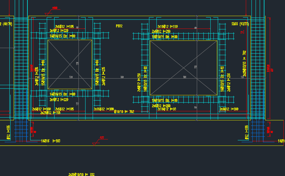
Arkadşlar tekrardan merhaba bir konuda daha takıldım. Şimdi ben bodrum katın perdelerinde pencere boşlukları bıraktım 100x150 cm gibi pencere boşlukları ama sonra farkettim ki data da bu hata gözüküyor.
Ekran Alıntısı.PNG

Click to View Image147 View(s)

ama benim anlamadığım bir sürü onaylanmış proje var ve bunalrın hepsi neredeyse 1 mt yükseliğinde boydan boya boşluk bırakıyor kısa kolon olma riski olsa bile onaylanıyor.. yani bu hatayı görmezden mi geliyorlar mühendisler yoksa bu programda boşluklu bağ kiriş ile mi tasarlamam lazım. panel yerine
Sedat C
a month ago
Merhabalar,

Boşluklu perde ile perdedeki boşluk birbirlerinden farklıdır. Konu ile alakalı olarak TBDY 2018 4.5.4 ve 7.10 maddelerini inceleyebilirsiniz.

Not: Bodrum perdelerinde boşluk açarken tüm katta kısa kolon oluşumu kesinlikle engellenmelidir.