Sehim Hesabı KabulleriStasteel programında, sehim hesabı yapılırken kiriş uzunluğu, kirişin kesme kuvveti diagramına ve düğüm noktası tesirlerine bağlı olarak seçilir. Bu sayede kirişlerde ek olması durumunda veya tali kirişler bağlanması durumunda da doğru uzunluk alınır. Örneğin 9m uzunuğundaki ana kirişlere 1m arayla tali kirişler bağlanmış olsun. Kesme kuvveti diagramı aşağıdaki gibi olacaktır:

Click to View Image1149 View(s)
Görüldüğü gibi ana kirişin sehim kontrol noktaları, kesme kuvveti diagramından anlaşılabilmektedir. Bazı durumlarda neyin taşıyıcı neyin taşınan olduğuna mühendis bile karar veremez, yine en iyi sonuç kesme kuvveti diagramından alınmaktadır. Bu durumda programın verdiği sehim hesabı aşağıdaki gibidir:

Click to View Image1184 View(s)
Ana kirişin uzunluğunun 9m alındığı, ayrıca basit kiriş olarak çalıştığı düğüm noktası tepkilerinden de anlaşılmaktadır. Ana kirişi örneğin iki parçaya bölseydik, sistemin statiği değişmeyeceği için yine aynı hesap yapılırdı.
Basit kiriş sehim sınırı olarak bilindiği gibi TS648'de L/300 şartı aranmaktadır. Eurocode'da [EN 1990:2002] kısmında [A1.4 Serviceability limit states] başlığı altında sehim kombinasyonları ve tanımları yapılmış, izin verilen sehimi yapının kullanım ihtiyaçlarına ve yerel yönetmeliklere bağlamıştır(Net rakam vermemektedir). Buna binaen Eurocode yönetmeliği seçilirse de L/300 üzerinden kontrol yapılır.
Kren kirişlerinde EN1993-6:2007 tablo 7.1 uyarınca L/600'e izin verilmektedir.
Stasteel programında bu opsiyonlar kulanıcıya açık olmakla birlikte basit kirişlerde L/300, konsol kirişlerde L/250, kren kirişlerde L/600 olarak alınır.
Birleşim tipinin sehime etkisiSeçilen birleşim tipinin yapının taşıyıcı sistem davranışına önemli etkisi bulunmaktadır. Bazı birleşimler ankastre, bazıları mafsallı, bazıları yarı ankastre sayılırlar. Bazı durumlarda bunun ayrımına tam olarak yapabilmek zor olsa da yapıya etkisinin yaklaşık veya kesin yöntemlerle hesaba alınması gerekmektedir.
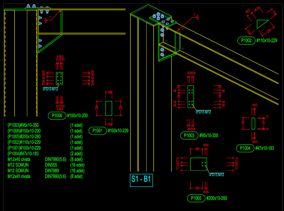
Örneğin kolon-kiriş bağlantılarında sık kullanılan bulonlu sistemde:

Click to View Image1128 View(s)
aynı birleşimin iki farklı bulon dağılımını göze alalım. Bütün elemanlar aynı, sadece bulonların yeri farklı durumdadır. Yanlız bu dağılım, birleşimin kuvvet kolu uzunluğunu değiştirmektedir. Buna binaen iki birleşimin rijitlikleri de değişmektedir. Bulonların ortada olduğu duruda:

Click to View Image1048 View(s)
kırmızı ile işaretlenen 2285.7kNm dönme rijitliği bulunmaktadır. Bulonlar profilin dışına çıktığında ise:

Click to View Image1008 View(s)
6663.6 ve 4603.3kNm dönme rijitliği oluşmuştur. Burada dikkat edilmesi gereken hususlar:
*Dönme rijitliği kNm cinsindendir. Yani ilk birleşime 2285.7kNm moment uygularsanız 2285.7kNm/2285.7kNm=1(birimsiz=radyan) birim dönme elde edersiniz.
*İkinci birleşim ilkinden 2-3 kat daha rijittir, yani aynı dönmeyi elde etmek için 2-3 kat moment uygulamanız gerekir.
*İkinci birleşimde + ve - moment farklı rijitlikte çalışmaktadır. Çünkü negatif momenti karşılayan iki bulon, pozitif momenti karşılayan tek bulon vardır.
*Rijitlik hesapları sadece bulon yerlerine bağlı değil, plaka kalınlığı, varsa rijitleştirme levhası, kolon profiline de bağlıdır.
Birleşim rijitliğindeki fark karşımıza ilk olarak şekildeğiştirme diyagramlarında çıkar:

Click to View Image1002 View(s)
Görüldüğü gibi aynı yükle yüklenmiş iki çerçevenin şekildeğiştirmesi farklı durumdadır. Ayrıca güçlü birleşim dağılımda rijit davranacak ve momenti üstüne çekecektir:

Click to View Image1050 View(s)
Zayıf birleşim ise fazla moment alamayacak ve bu moment açıklıkta karşılanacaktır. Bunun sonucu olarak,
zayıf birleşim kullanıldığı takdirde açıklık sehimi daha fazla olur.Konsol kısmının mafsallı olması durumu:Bazı birleşimler için ise tam mafsallı kabulü yapılır. Özellikle başlıkların kesildiği, devam etmediği durumlarda sistem mafsallı sayılarak bütün momentin açıklıkta karşılanması istenir. Bu birleşimler konsol sistemde uygulandığı takdirde statik olarak labile yakın bir sistem elde edilir.
Profil taşıma gücü ve birleşim hesapları kurtarsa bile, sehim uyarısı alınır
Click to View Image1086 View(s)
Bu durumda çözüm şöyle olabilir, konsol sistemlerde momentin karşılanacağı tek yer ana sisteme bağlanan uc olduğu için ve sehim hariç diğer hesaplar kurtardığı için kontrollü bir şekilde birleşim rijitliği artırılarak sehimin değişimi izlenir:

Click to View Image1105 View(s)
Sistemin ana kiriş ile bağlandığı noktaya biraz rijitlik verilir, çözümden sonra birleşimin kurtarıp kurtarmadığı kontrol edilir. Birleşim elemanları gelen momente göre kontrol edilmektedir:

Click to View Image1102 View(s)
Rijitlik yeterince artırıldığında, moment diyagramı da beklendiği gibi konsol moment diyagramına döner:

Click to View Image1089 View(s)
ve konsol kısmın labilliği ortadan kalkarak sehimlerde kurtarır hale gelir:

Click to View Image1100 View(s)
Edited by user
7 years ago |
Reason: Not specified